Private House in Napetvrebi
Napetvrebi. Georgia
2025
Status: On going
Design
Tornike Chelidze
Architecture
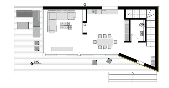
Ground
Floor Plan
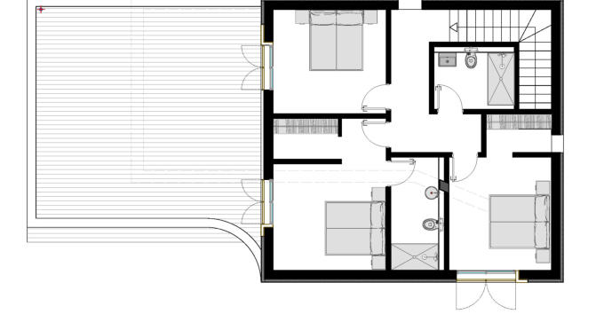
1
Floor Plan
about
about